Để thiết kế bếp cho nhà hàng, khách sạn cần phải đáp ứng một số tiêu chuẩn nhất định, không giống như thiết kế bếp sử dụng trong gia đình. Do đó, muốn đáp ứng được những yêu về mặt thiết kế cần phải đảm bảo tiêu chuẩn thiết kế bếp nhà hàng. Vậy đó là những tiêu chuẩn nào? Cách để setup một căn bếp nhà hàng chuẩn để đội ngũ đầu bếp phát huy tối đa công việc ra sao? Hãy cùng Thietbikhachsan tìm hiểu rõ hơn trong bài viết sau đây nhé!
Tìm hiểu tiêu chuẩn thiết kế bếp nhà hàng là gì?
Tùy thuộc vào mỗi mô hình, quy mô hoạt động của từng nhà hàng mà sẽ có những tiêu chuẩn thiết kế nhất định. Trong đó, tiêu chuẩn thiết kế nhà hàng TCVN là một bộ quy tắc được nghiên cứu và đưa ra để mọi công trình nhà hàng được xây dựng đảm bảo yêu cầu, chất lượng về mặt không gian.

Hai phong cách thiết kế bếp nhà hàng phổ biến
Tiêu chuẩn thiết kế bếp nhà hàng hiện nay hướng đến hai phong cách ẩm thực phổ biến đó là Châu Âu và Châu Á. Đây là cách phân loại dựa vào tính chất, đặc trưng của ẩm thực vùng miền đó là Châu Âu và Châu Á. Từ đó có 2 phong cách về tiêu chuẩ thiết kế bếp nhà hàng kiểu Âu và kiểu Á.
Phong cách thiết kế bếp kiểu Á
Bếp kiểu Á sẽ được trang bị những loại dụng cụ, thiết bị phục vụ cho việc chế biến các món ăn truyền thống kiểu Châu Á. Trong đó, riêng các loại nồi, xoong, chảo,... sẽ có kiểu dáng truyền thống để chế biến những món ăn đặc trưng. Đối với một số món ăn kiểu Á Đông như món kho còn được trang bị thêm những loại nồi đất. Bên cạnh đó, đối với cơm là món ăn chính thì tiêu chuẩn thiết kế bếp nhà hàng kiểu Á sẽ luôn có tủ cơm công nghiệp mới có thể phục vụ khách hàng một cách nhanh chóng và kịp thời.
Phong cách thiết kế bếp kiểu Âu
Hiện nay, phong cách thiết kế bếp nhà hàng kiểu Âu rất phổ biến. Với tiêu chuẩn thiết kế bếp nhà hàng hiện đại, thích hợp với đa số loại hình nhà hàng hiện nay nên rất được nhiều chủ nhà hàng ưa chuộng lựa chọn. Hơn nữa, thiết kế bếp Âu cũng đáp ứng được tất cả những yêu cầu, tiêu chuẩn trong việc chế biến các loại món Âu tốt nhất.

Các tiêu chuẩn thiết kế bếp nhà hàng
Để đội ngũ đầu bếp có thể tạo ra được những món ăn thơm ngon, hấp dẫn, bên cạnh việc lựa chọn các loại thực phẩm được chất lượng thì quá trình chế biến món ăn cũng đóng vai trò cực kỳ quan trọng. Để thực hiện được điều này đòi hỏi phải tuân thủ các tiêu chuẩn thiết kế bếp nhà hàng cũng như chắc chắn rằng các loại thực phẩm luôn đảm bảo chất lượng.
Tiêu chuẩn diện tích bếp nhà hàng
Trong tiêu chuẩn thiết kế bếp nhà hàng, diện tích là yếu tố đầu tiên cần phải quan tâm. Bởi mỗi khu vực bếp sẽ có diện tích nhất định và cách thiết kế như thế nào để đảm bảo sự phù hợp nhưng vẫn phát huy tối đa công năng sử dụng.Diện tích tiêu chuẩn không có một con số cụ thể mà dựa vào tỷ lệ mặt bằng khu vực bếp so với tổng diện tích của nhà hàng. Thông thường, một khu vực bếp tiêu chuẩn phải có diện tích đạt từ 30 – 40% diện tích tổng nhà hàng.
Như vậy, nếu nhà hàng có tổng diện tích là 200m2, khu vực bếp tối thiểu phải có diện tích đạt 60 – 80m2. Nếu nhà hàng có diện tích lớn hơn, đòi hỏi khu vực bếp phải có diện tích lớn hơn và ngược lại. Bởi với quy mô, diện tích nhà hàng lớn hơn thì đòi hỏi phải phục vụ số lượng thực khách cao hơn. Yêu cầu đặt ra đó là phải đảm bảo rằng món ăn được chế biến một cách nhanh chóng nhất để phục vụ thực khách.
Phong cách thiết kế bếp kiểu Âu
Điều đầu tiên khi nói đến đến tiêu chuẩn thiết kế bếp nhà hàng đó chính là không gian bếp. Mỗi một thiết kế nhà hàng được thiết kế cần phải phù hợp với menu món ăn đặc trưng. Chính vì thế, việc thiết kế nhà bếp sẽ có sự khác biệt ở một số nhà hàng cụ thể.

Khu vực bảo quản thực phẩm
Khu vực bảo quản thực phẩm có thể là khu vực kho trong bếp. Đây chính là nơi lưu trữ toàn bộ thực phẩm, nguyên vật liệu phục vụ cho công việc chế biến, nấu nướng món ăn theo order của thực khách. Hiện có 2 loại thực phẩm chính đó là thực phẩm tươi và khô. Các loại thực phẩm tươi sau khi được nhập về nhà hàng cần phải sơ chế theo quy định và đưa vào kho bảo quản như tủ đông, tủ mát. Còn thực phẩm khô và gia vị sẽ có cách bảo quản đơn giản hơn.
Khu vực sơ chế thực phẩm
Tiêu chuẩn thiết kế bếp nhà hàng đối với khu vực sơ chế thực phẩm đó là cần phải trang bị đầy đủ các dụng cụ, thiết bị như: Bồn rửa, máy cắt thịt, máy xay thịt, máy thái rau củ… Với những thiết bị và dụng cụ sơ chế này sẽ giúp cho đầu bếp dễ dàng chuẩn bị nguyên liệu, thực phẩm để tạo ra món ăn một cách nhanh chóng nhất.
Khu vực chế biến món ăn
Trong bộ tiêu chuẩn thiết kế bếp nhà hàng, đây chính là khu vực quan trọng nhất để tạo ra những món ăn thơm ngon, hấp dẫn cho thực khách. Hơn nữa, đây cũng chính là khu vực mà các đầu bếp hoạt động liên tục, thường xuyên. Chính vì thế, muốn hiệu quả hoạt động ở khu vực chế biến món ăn đảm bảo, hiệu quả, cần phải có thiết kế không gian bếp rộng rãi, thông thoáng, mang đến sự thuận tiện nhất cho đầu bếp.

Tiêu chuẩn thiết kế bếp nhà hàng ở khu vực chế biến cần phải có kích thước tối thiểu cho lối đi trong nhà bếp đó là 1 – 3m. Đây là kích thước lý tưởng để giúp cho việc di chuyển của các đầu bếp được dễ dàng và thuận lợi nhất. Nếu lối đi quá hẹp sẽ dẫn đến việc đi lại bị ảnh hưởng, thời gian chế biến món ăn sẽ lâu hơn.
Khu vực trưng bày món ăn
Món ăn sau khi được chế biến hoàn thiện sẽ được di chuyển đến khu vực trưng bày món ăn để nhân viên phục vụ mang đến bàn phục vụ thực khách. Chính vì vậy, để đảm bảo thuận tiện, vị trí trưng bày món ăn cần phải bố trí sát cửa ra vào, tiết kiệm thời gian cho đội ngũ nhân viên phục vụ.Điều này cũng giúp cho món ăn giữ được độ nóng và hương vị thơm ngon nhất có thể. Đồng thời giữ được hương vị, chất lượng và màu sắc của món ăn một cách hoàn hảo nhất. Khu vực trưng bày món cần phải có không gian trống trải, thức ăn dễ đưa vào và lấy ra.

Khu vực vệ sinh các loại dụng cụ bếp nhà hàng
Tiêu chuẩn thiết kế bếp nhà hàng theo khu vực cuối cùng đó là để vệ sinh các loại dụng cụ bếp, chén đĩa thực khách đã sử dụng. Khu vực này cần phải được bố trí tách biệt và nằm ở cuối căn bếp nhà hàng. Bởi đây là khu vực sử dụng để chứa rác, nước bẩn, hóa chất tẩy rửa,… không được để gần khu vực chế biến món ăn sẽ làm ảnh hưởng đến vệ sinh an toàn thực phẩm.
Tiêu chuẩn an toàn khi thiết kế bếp nhà hàng
Thiết kế hệ thống dẫn ga
Tiêu chuẩn thiết kế bếp nhà hàng cần phải đảm bảo tính an toàn, đặc biệt là hệ thống dẫn ga phải đặc biệt chú trọng. Đường dẫn gas cần phải kín, không được sắp xếp gần đường điện và đặc biệt là không để gần nguồn nhiệt lớn. Trong quá trình sử dụng cần phải kiểm tra, bảo dưỡng hệ thống gas một cách cẩn thận để phòng ngừa rủi ro, sự cố về gas có thể xảy ra.
Thiết kế hệ thống thông gió
Tiêu chuẩn thiết kế bếp nhà hàng cần phải có khả năng thông gió, thông thoáng mùi thức ăn trong quá trình chế biến món ăn. Nếu không gian bếp quá bí bách sẽ tạo ra sự ngột ngạt, ảnh hưởng đến hiệu quả làm việc của bộ phận bếp. Từ đó dẫn đến chất lượng món ăn bị ảnh hưởng do nhiệt độ cao. Để đảm bảo tiêu chuẩn hệ thống thông gió cần phải trang bị đủ các loại máy hút khói, hút mùi, quạt tản gió,...

Thiết kế hệ thống thoát nước
Khu vực nhà bếp là nơi sử dụng nhiều nước vì cần phải sơ chế, nấu nướng, vệ sinh các loại dụng cụ, thiết bị… Vì vậy, việc xây dựng hệ thống thoát nước đáp ứng tiêu chuẩn thiết kế bếp nhà hàng là rất quan trọng. Nếu hệ thống thoát nước không đảm bảo sẽ dẫn đến ứ đọng và trơn trượt, gây nguy hiểm cho nhân viên bếp. Điều này sẽ khiến cho vi khuẩn, nấm mốc sinh sôi, không đảm bảo vệ sinh an toàn thực phẩm.
Tiêu chuẩn thiết kế ánh sáng khu vực bếp
Cho dù ở khu vực nào trong nhà hàng, khách sạn cũng cần phải đảm bảo cung cấp đầy đủ ánh sáng, đặc biệt là trong khu vực chế biến và hoàn thiện món ăn. Với hệ thống ánh sáng đầy đủ sẽ giúp cho màu sắc món ăn được phản ánh rõ nét nhất. Sau khi ánh sáng được hiển thị chính xác cũng là cách để món ăn được chế biến đúng cách.Ánh sáng tiêu chuẩn trong thiết kế bếp nhà hàng đó là ánh sáng trắng. Bởi đây là loại ánh sáng sẽ không làm ảnh hưởng đến thị giác của đầu bếp. Khi màu sắc được phản ánh trực quan, chính xác sẽ giúp đầu bếp nhận thấy được rằng món ăn đã đạt yêu cầu về mặt hình thức lẫn chất lượng.
Tiêu chuẩn thiết kế bếp nhà hàng về mặt ánh sáng đóng vai trò cực kỳ quan trọng. Ngoài ra còn phải đảm bảo sự phù hợp đối với ánh sáng tự nhiên bên ngoài. Bởi ánh sáng sẽ hỗ trợ tích cực giúp cho công việc được diễn ra trôi chảy và suôn sẻ. Bởi nếu làm việc trong môi trường thiếu ánh sáng sẽ làm ảnh hưởng đến hiệu quả công việc và chất lượng món ăn.
Quy trình setup bếp nhà hàng khách sạn
Nhu cầu setup bếp nhà hàng khách sạn hiện nay luôn được nhiều người đặt ra. Sau khi nắm rõ tiêu chuẩn thiết kế bếp nhà hàng, các bạn hãy tham khảo quy trình sắp xếp, bố trí chuẩn để mang đến một khu vực bếp hoàn hảo nhất. Setup bếp nhà hàng cần phải đòi hỏi sự tỉ mỉ và tính toán thật kỹ lưỡng.

Bước 1: Xác định mục tiêu và nhu cầu sử dụng
Dựa vào tiêu chuẩn thiết kế bếp nhà hàng, khi setup bếp cần phải xác định rõ các yếu tố như sau:
- Dự trù nguồn vốn cần sử dụng để đầu tư mua sắm, setup các thiết bị nhà bếp nhà hàng.
- Không gian dùng để trang bị, lắp đặt các sản phẩm nhà bếp là bao nhiêu.
- Lựa chọn nhà cung cấp trang thiết bị có nhiều kinh nghiệm trong lĩnh vực setup bếp nhà hàng. Thông qua những đơn vị này sẽ giúp các bạn được tư vấn nhiều hơn và đưa ra những mục tiêu giúp tiết kiệm tối ưu thời gian lựa chọn lắp đặt cũng như chi phí đầu tư.
- Dựa vào thực đơn món ăn của nhà hàng để xác định được các loại thiết bị sử dụng chế biến món ăn, nên lưu ý phân chia theo từng khu vực bếp.
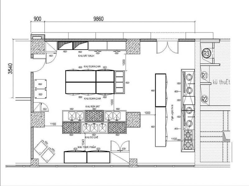
Bước 2: Khảo sát không gian và lên bản vẽ thiết kế
Sau khi đã lựa chọn được cho mình một đơn vị cung ứng trang thiết bị bếp nhà hàng uy tín, chất lượng, tiếp theo cần lên kế hoạch phân chia thành từng khu vực cụ thể trong bếp nhà hàng bao gồm: Khu vực nấu nướng, khu vực chuẩn bị nguyên vật liệu, khu vực vệ sinh dụng cụ nấu ăn,… Sau khi đã đo đạc được tất cả các kích thước trong không gian khu vực bếp, đơn vị thiết kế sẽ tiến hành lên bản vẽ cụ thể dành cho từng khu vực để chủ nhà hàng dễ dàng hình dung hơn và đưa ra quyết định của mình.

Bước 3: Lên danh sách các thiết bị bếp cần sử dụng
Căn cứ vào bản vẽ chi tiết của mỗi khu vực trong không gian bếp, các bạn cần tiến hành lên danh sách các thiết bị, công cụ theo đúng tiêu chuẩn thiết kế bếp nhà hàng, đưa ra số lượng cụ thể cần đầu tư cho từng khu vực bếp.Thông qua danh sách liệt kê đầy đủ các loại thiết bị, dụng cụ này, chủ nhà hàng sẽ nắm được khu vực bếp cần phải đầu tư lắp đặt những loại thiết bị gì. Sau đó tiến hành nhờ đơn vị cung cấp báo giá chi tiết theo số lượng thiết bị cần setup bếp nhà hàng. Thông qua đó sẽ tính toán và dự trù được kinh phí setup theo đúng tiêu chuẩn thiết kế bếp nhà hàng.
Bước 4: Thi công và setup bếp nhà hàng
Sau khi đã hoàn thiện chi tiết bản vẽ và đưa ra danh sách các trang thiết bị, đơn vị thi công, setup bếp nhà hàng sẽ tiến hành hoàn tất khu vực bếp theo đúng bản vẽ. Sau khi hoàn thiện lắp đặt,đơn vị cung cấp và setup bếp nhà hàng sẽ lên kế hoạch giao theo từng khu vực bếp. Sau đó cử nhân viên kỹ thuật lắp đặt từng thiết bị cụ thể cho mỗi khu vực bếp đã được phân chia trước đó.Cuối cùng, đơn vị cung cấp và setup theo đúng tiêu chuẩn bếp nhà hàng sẽ tiến hành bàn giao cũng như nghiệm thu công trình cho khách hàng. Sau khi khảo sát và nghiệm thu có thể tiến hành căn chỉnh và khắc phục sao cho phù hợp nếu cảm thấy cần thiết.